Fuel guage issue with ic7
Thread Starter
Joined: Sep 2009
Posts: 3,588
Likes: 298
From: Pinckney, Michigan
Fuel guage issue with ic7
Ok so I am getting my ic7 all finished up and now I have an issue. So now I will ask for some help from the community. I have been looking for the fuel gauge wire all weekend and I finally found out that someone on here posted it as the blue connector behind your gauge cluster and it is the white with black wire. Can anyone confirm this. Reason I am asking being I have followed the proper procedure for getting the fuel tank to get voltage to the ic7. I had about 3/8 of a tank and I decided I would record that value and use it as my 0 or empty voltage. The voltage that I got from my ic9 was 1.46v. So I said ok I went and filled up the car and it was reading 4.96v.
So fast forward to yesterday I noticed I had the wrong wire for the fuel gauge. The white with black stripe is the one that is for the gauge I hope, but now after switching over there is no voltage anywhere to be found. I have 65.4 ohms but no millivolts and 0 volts. So with that said am I using the correct wire for the ic7? Any help would be appreciated being I am trying to get this sorted out for the shootout and with a about 90% full tank not something I wanna have to try to take all the gas out. I do have the stock cluster so I can drive the car, but unfortunately I had to cut wires which I so did not wanna do to make this dash work. Thanks in advance.
So fast forward to yesterday I noticed I had the wrong wire for the fuel gauge. The white with black stripe is the one that is for the gauge I hope, but now after switching over there is no voltage anywhere to be found. I have 65.4 ohms but no millivolts and 0 volts. So with that said am I using the correct wire for the ic7? Any help would be appreciated being I am trying to get this sorted out for the shootout and with a about 90% full tank not something I wanna have to try to take all the gas out. I do have the stock cluster so I can drive the car, but unfortunately I had to cut wires which I so did not wanna do to make this dash work. Thanks in advance.
Thread Starter
Joined: Sep 2009
Posts: 3,588
Likes: 298
From: Pinckney, Michigan
what OHM pull up resistor does your IC7 have. mine is 1000ohm
100% full is 0.00v
20% full is roughly .025v
if you have a 240 ohm pull up resistor
100% full is 0.00v
0% is 1.45v
Use a smoothing filter of 4000-5000ms, otherwise the value will jump around like crazy
use these as a baseline, since my car is a JDM unit with a smaller tank, and the values i got for the 240ohm resistor are from a USDM evo with a larger tank. I would fully calibrate it the old fashioned way.
100% full is 0.00v
20% full is roughly .025v
if you have a 240 ohm pull up resistor
100% full is 0.00v
0% is 1.45v
Use a smoothing filter of 4000-5000ms, otherwise the value will jump around like crazy
use these as a baseline, since my car is a JDM unit with a smaller tank, and the values i got for the 240ohm resistor are from a USDM evo with a larger tank. I would fully calibrate it the old fashioned way.
Thread Starter
Joined: Sep 2009
Posts: 3,588
Likes: 298
From: Pinckney, Michigan
what OHM pull up resistor does your IC7 have. mine is 1000ohm
100% full is 0.00v
20% full is roughly .025v
if you have a 240 ohm pull up resistor
100% full is 0.00v
0% is 1.45v
Use a smoothing filter of 4000-5000ms, otherwise the value will jump around like crazy
use these as a baseline, since my car is a JDM unit with a smaller tank, and the values i got for the 240ohm resistor are from a USDM evo with a larger tank. I would fully calibrate it the old fashioned way.
100% full is 0.00v
20% full is roughly .025v
if you have a 240 ohm pull up resistor
100% full is 0.00v
0% is 1.45v
Use a smoothing filter of 4000-5000ms, otherwise the value will jump around like crazy
use these as a baseline, since my car is a JDM unit with a smaller tank, and the values i got for the 240ohm resistor are from a USDM evo with a larger tank. I would fully calibrate it the old fashioned way.
I Just swapped over to the white plug behind the dash black with red stripe and now I have almost a full tank at 4.96v.
I am using the 90-0 ohm. Idk if I'm using the correct wire or not this is the problem once I figure it out I can work on the gas part of calibration.
The question I have now is why is my low fuel message keep popping up when I turn the key to on
My pull up resister in the ic7 software is 240 ohms and I can enable or disable it.
I Just swapped over to the white plug behind the dash black with red stripe and now I have almost a full tank at 4.96v.
I am using the 90-0 ohm. Idk if I'm using the correct wire or not this is the problem once I figure it out I can work on the gas part of calibration.
The question I have now is why is my low fuel message keep popping up when I turn the key to on
I Just swapped over to the white plug behind the dash black with red stripe and now I have almost a full tank at 4.96v.
I am using the 90-0 ohm. Idk if I'm using the correct wire or not this is the problem once I figure it out I can work on the gas part of calibration.
The question I have now is why is my low fuel message keep popping up when I turn the key to on
Confirm its wired into AVI 4 in the IC7
Trending Topics
Thread Starter
Joined: Sep 2009
Posts: 3,588
Likes: 298
From: Pinckney, Michigan
Did you have to wire in a resister? That is the question I should ask or are you just using the pu up resister option in the software?
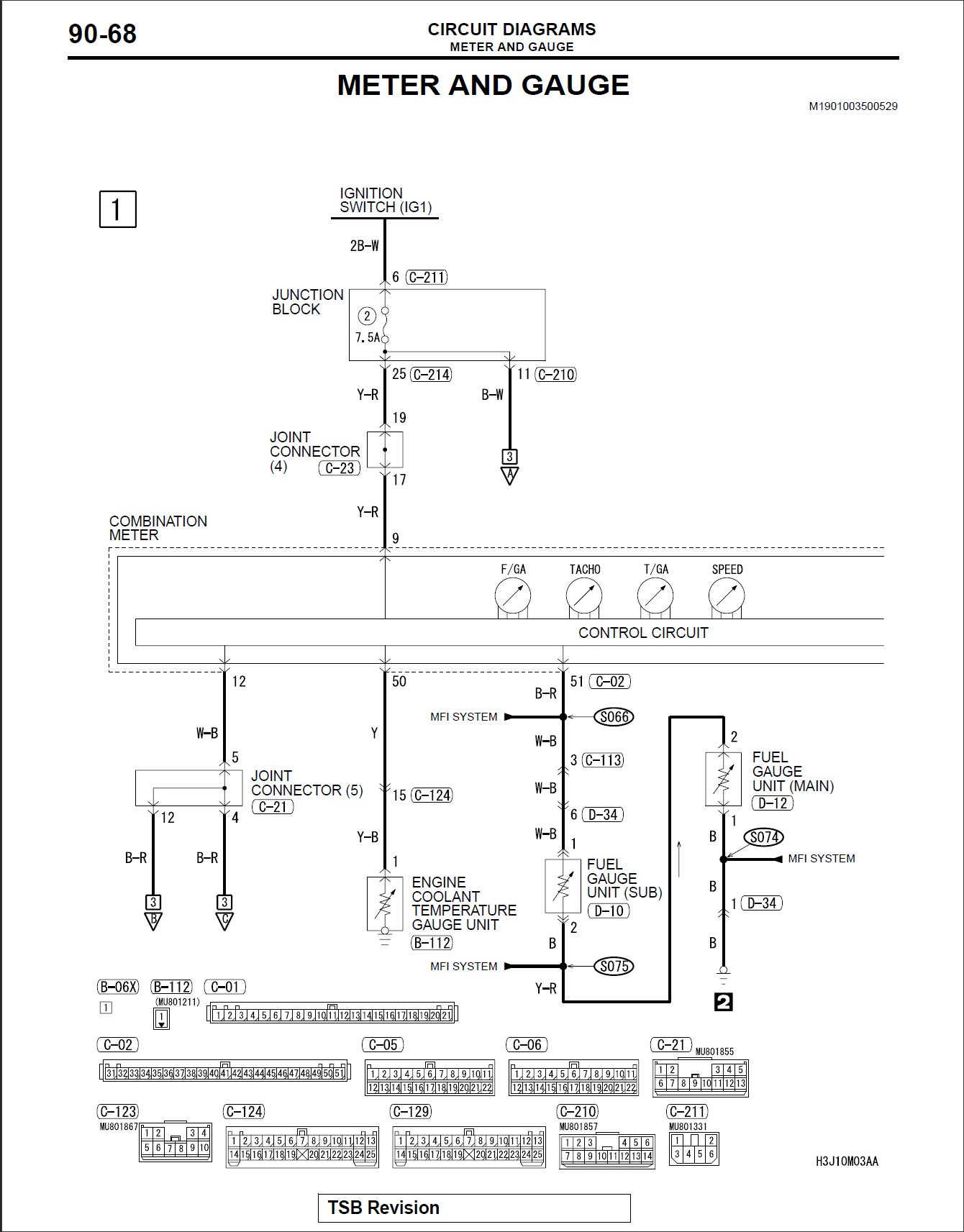
Ilok I have that part down I just need to know what plug and what color wire to use in the back of the cluster. The diagram shows black with red stripe but if I look in the back of the dash that wire is on the opposite side of the cluster . I'm not very good at writing and diagrams so please beat with me.
Did you have to wire in a resister? That is the question I should ask or are you just using the pu up resister option in the software?
Did you have to wire in a resister? That is the question I should ask or are you just using the pu up resister option in the software?
my fuel gauge is wired into a green wire on the blue connector on the right side. My car is a JDM evo 7, but the wiring diagram for my car says pin 51 on c-02 connector just like the diagram posted above
I am just using the pull up resistor in the software
Thread Starter
Joined: Sep 2009
Posts: 3,588
Likes: 298
From: Pinckney, Michigan
I just went and pulled my ic7 out.
my fuel gauge is wired into a green wire on the blue connector on the right side. My car is a JDM evo 7, but the wiring diagram for my car says pin 51 on c-02 connector just like the diagram posted above
I am just using the pull up resistor in the software
my fuel gauge is wired into a green wire on the blue connector on the right side. My car is a JDM evo 7, but the wiring diagram for my car says pin 51 on c-02 connector just like the diagram posted above
I am just using the pull up resistor in the software
Ok what wire lol I'm getting desperate being I have a ton to do to the car and I'm running out of daylight.
Ok so the one all the way to the right blue with white stripe.
Thread Starter
Joined: Sep 2009
Posts: 3,588
Likes: 298
From: Pinckney, Michigan
Thread Starter
Joined: Sep 2009
Posts: 3,588
Likes: 298
From: Pinckney, Michigan
Here's my wiring
colors may be different on your car
Left Turn - C-01 pin 3 turqouise
Right turn - C-02 pin 49 Pink
high beam - C-01 pin 4 red
fuel sender - C-02 pin 51 Green
alternator positive - C-01 pin 9
alternator positive - C-01 pin 19
colors may be different on your car
Left Turn - C-01 pin 3 turqouise
Right turn - C-02 pin 49 Pink
high beam - C-01 pin 4 red
fuel sender - C-02 pin 51 Green
alternator positive - C-01 pin 9
alternator positive - C-01 pin 19









