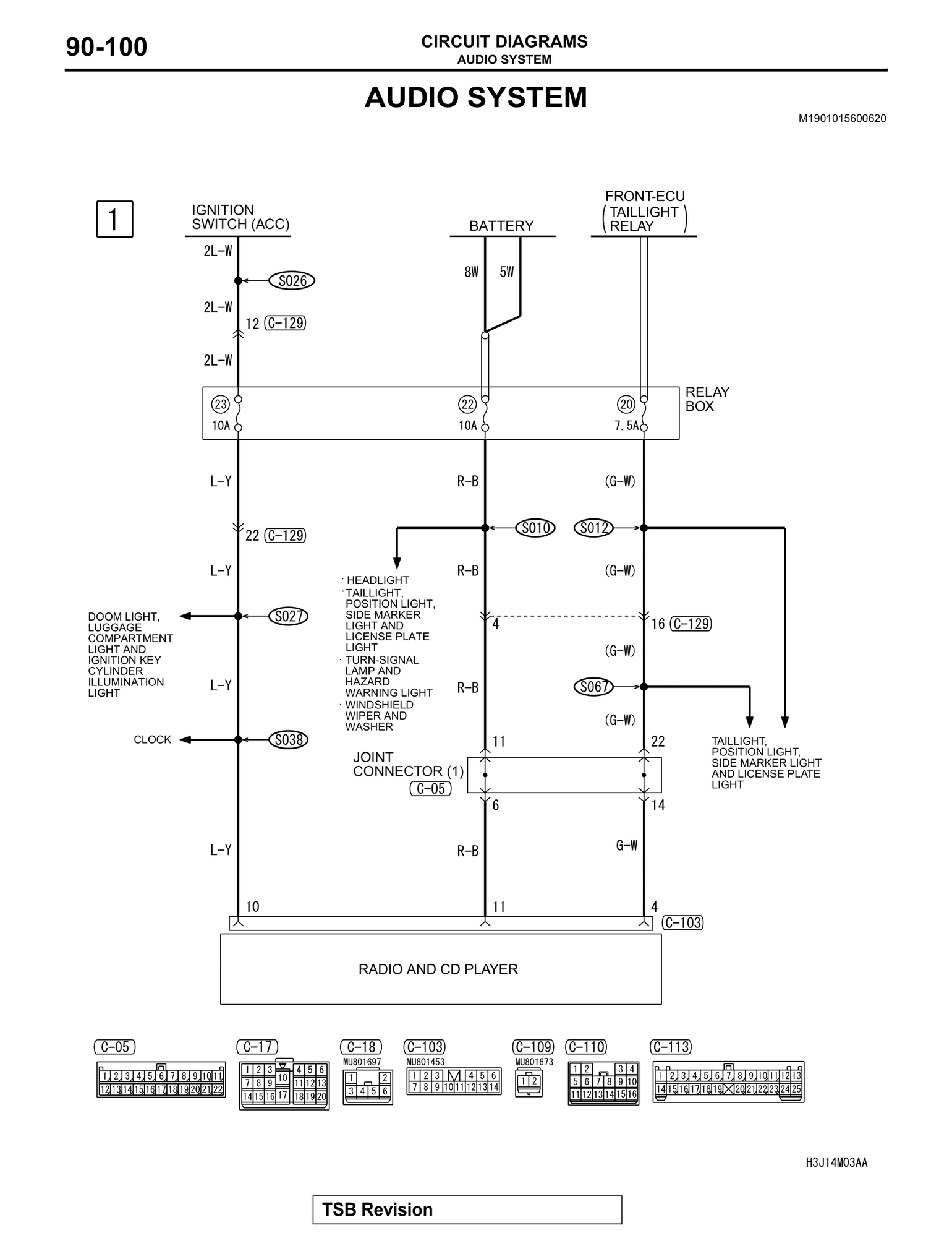
Under glove box wiring.
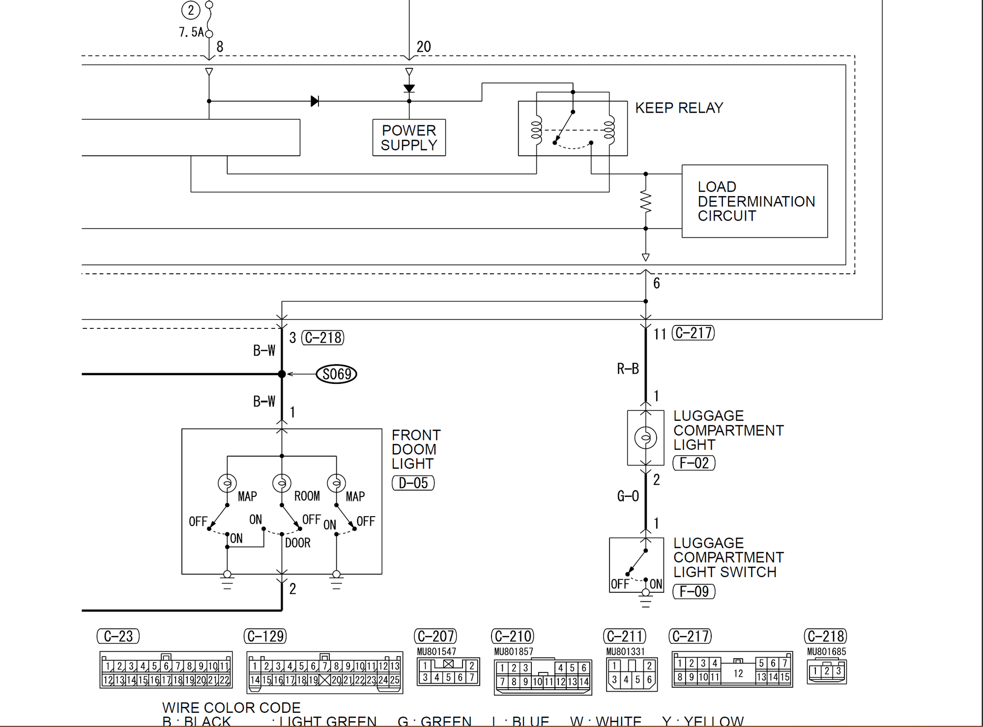
Under glove box wiring.
I’m currently working on a 2003 Evo that I am confused about. This factory door wire under the dash used to connect to something, but I am having a hard time figuring out what went to. Any ideas
Thanks everyone for trying to help. Wire colors are red with a white stripe and red with a blue stripe.
Trending Topics
The horror.
I ordered a cheap radio. After Biggiesacks post, I started looking into things. There’s not a single speaker in this car. Not even the tweeters.
I guess that radio isn’t going to work too well.
I ordered a cheap radio. After Biggiesacks post, I started looking into things. There’s not a single speaker in this car. Not even the tweeters.
I guess that radio isn’t going to work too well.

So was that connector going to the tweeter or to the radio? I got one or two like that too, as well as the antenna connector, but all my speakers work and I deleted the factory radio and replaced it with just a KTP-445U.
No typo. They meant that LOL

Just checked my 9 manual. Corrected and the offender is no longer w/us
Last edited by MinusPrevious; Nov 18, 2022 at 04:12 PM.
Thread
Thread Starter
Forum
Replies
Last Post
BalistiK_EvoIX
Evo Electrical / Audio / Security
9
Mar 10, 2009 07:36 PM
midwestmonster
Evo How To Requests / Questions / Tips
2
Mar 17, 2005 10:33 PM










